自力电控温度调节阀-ZZWPE

- 销售:
- 销售:
- 传真:
详情介绍
- 产品介绍
- 服务承诺
- 订货流程
ZZWPE自力式电控温度调节阀(适用于较大口径及导热油控制),该阀大的特点只需普通220V电源,利用被调介质自身能量,直接对蒸汽、热水、热油与气体等介质的温度实行自动调节和控制,亦可使用在防止对过热或热交换场合,该阀结构简单,操作方便,选用调温范围广、响应时间快、密封性能可靠,并可在运行中随意进行调节,因而广泛应用于化工、石油、食品、轻纺、宾馆与饭店等部门的热水供应。
自力电控温度调节阀 结构原理
调节阀由主阀、智能执行器与传感器三部分组成,根据用户需要,分别有加热型与冷却型两种结构。
1.加热型调节阀的结构与原理,见附图示:
工作前主阀芯处于半开位置,传感器处于自然状态。接上电源,主阀芯全开。介质由箭头方向流入主阀体、经阀芯对储热箱进行加热。当温度升到相应设定值时,传感器即产生相应线性信号输入智能执行机构,随即驱动阀杆、阀芯产生位移,关闭主阀芯停止加热。当温度低于设定值时,传感器即产生线性信号输入执行机构,驱使阀芯渐开,使介质按抛物线特性流入储热箱,进行加热直至设定值。这样被控介质始终在设定温度范围内被控制,从而达到控温目的。
(1)智能型执行器
(2)主阀体
(3)传感器
(4)毛细管
(5)手动机构
备注:常说的加热型、冷却型。在此阀中只要更换阀芯结构即可以实现。
自力电控温度调节阀 主要技术参数
公称通径 (mm) | 15 | 20 | 25 | 32 | 40 | 50 | 65 | 80 | 100 | 125 | 150 | 200 | |
公称压力 PN(MPa) | 1.6 4.0 | ||||||||||||
流量能力 (m 3 /h) | 5 | 7 | 10 | 16 | 25 | 40 | 63 | 100 | 160 | 250 | 400 | 630 | |
额定行程 (mm) | 6 | 8 | 10 | 14 | 20 | 30 | 30 | 40 | |||||
温度调节范围 ( ℃ ) | 0~120 : 100~250 | ||||||||||||
调节精度 ( ℃ ) | ± 1 ~ ± 5 | ||||||||||||
使用介质 | 蒸汽、水、油、气体 | ||||||||||||
允许 | 硬密封 | 10 -4 X 阀额定容量 | |||||||||||
软密封 | “ 0 ” | ||||||||||||
毛细管长度 | 3m 、 5m 、 10m | ||||||||||||
温包扦入深度 | 270 、 430 、 630 | ||||||||||||
联接螺纹 | 3/4 ” 1 ” |
自力电控温度调节阀 执行机构
公称通径 DN ( mm ) | 20 | 25 | 32 | 40 | 50 | 65 | 80 | 100 | 125 | 150 | 200 | |
电动执行机构型号 | 普通型 | ZAZ-60 | ZAZ-60 | DKZ-410 | DKZ-410 | |||||||
电子型 | JHZAZ1 | JHZAZ2 | JHZAZ3 | JHZAZ3 | ||||||||
电动执行机构推力( N ) | 普通型 | 400 | 400 | 6400 | 6400 | |||||||
电子型 | 2000 | 4000 | 6000 | 8000 | ||||||||
全行程 | 普通型 | 12.5 | 20 | 32 | 48 | |||||||
电子型 | 30 | 30 | 48 | 60 | ||||||||
消耗功率( W ) | 普通型 | 28 | 35 | |||||||||
电子型 | 6 | 15 | 25 | 40 |
*表中数据仅为常规配置,具体选用根据主要参数及用户要求而定。
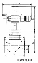
自力电控温度调节阀 主要外形尺寸
普通型 单位:mm
公称通径 DN | 20 | 25 | 32 | 40 | 50 | 65 | 80 | 100 | 125 | 150 | 200 | |
A | 460 | 530 | 630 | |||||||||
B | 230 | 230 | 260 | |||||||||
H 1 | 490 | 540 | 625 | |||||||||
L | 150 | 160 | 180 | 200 | 230 | 290 | 310 | 350 | 400 | 480 | 600 | |
H 2 | 175 | 180 | 215 | 218 | 230 | 280 | 285 | 315 | 400 | 460 | 540 | |
H 3 | 53 | 57.5 | 70 | 75 | 82.5 | 92.5 | 100 | 110 | 125 | 142.5 | 170 | |
重量 (Kg) | PN 16 40 | 50 | 52 | 54 | 56 | 58 | 75 | 87 | 95 | 132 | 135 | 155 |
PN64 | 53 | 56 | 58 | 65 | 68 | 84 | 110 | 129 | 177 | 180 | 210 |
电子型 单位:mm
公称通径 DN | 20 | 25 | 32 | 40 | 50 | 65 | 80 | 100 | 125 | 150 | 200 | |
d | φ 155 | φ 162 | φ 170 | |||||||||
H 4 | 290 | 325 | 380 | |||||||||
L | 150 | 160 | 180 | 200 | 230 | 290 | 310 | 350 | 400 | 480 | 600 | |
H 5 | 175 | 180 | 215 | 218 | 230 | 280 | 285 | 315 | 400 | 460 | 540 | |
H 6 | 53 | 58 | 70 | 75 | 82 | 92 | 100 | 110 | 125 | 142 | 170 | |
重量 (Kg) | PN 16 40 | 10 | 12 | 15 | 17 | 18 | 34 | 46 | 54 | 76 | 79 | 100 |
PN64 | 13 | 16 | 19 | 26 | 27 | 43 | 69 | 85 | 120 | 125 | 150 |
良好的品质、优良的服务 济南俊豪家庭艺术设计有限公司为你创造更多价值!
“济南俊豪家庭艺术设计有限公司”的期望,不断提升服务质量,精益求精,“真诚的服务”是“济南俊豪家庭艺术设计有限公司”永恒的主题。“济南俊豪家庭艺术设计有限公司”严格按照IS09001-2000 质量体系认证要求,质量严格把关, 责任到人,确保生产、销售、服务的健康运行。加强与用户沟通,竭诚为广大客户提供优良产品,至善至美服务。特此我厂做出以下承诺:
产品标准:
产品严格按照中国GB、HG 标准和美国API等标准设计、制造、验收。密封面硬度达到国家规定要求,宽度超过国家标准。
售前服务:
产品介绍,技术交流,非标产品设计,疑难解答。
售中服务:
守信合同,保证及时供货,随时保持与客户联系。 对特殊或复制的产品,我厂安排技术人员对用户进行产品使用、故障排除
售后服务:
1、“济南俊豪家庭艺术设计有限公司”牌产品品质期为自出厂起12个月,实行“三包”服务(包退、包换、保修)。
2、产品在使用中我厂定期组织技术、质检人员进行访问,征询用户对产品质量、 使用状况、改进意见等方面的反馈, 以便进一步提高产品质量。
3、对用户投诉质量问题,快速作出反应,售后服务人员在24-36小时(省外48小时)赶赴现场。
4、对售后服务,要求用户填写服务后的质量反馈信息表,并作出鉴定意见,以便提高济南俊豪家庭艺术设计有限公司的服务质量。
1、客户如对产品有特殊要求,须在订货合同中提供以下说明:
a、结构长度;
b、连接形式;
c、公称直径、全通径、缩径、管道尺寸;
d、运行介质及温度、压力范围;
e、试验、检验标准及其他要求
2、本厂可根据客户特定要求配置各类驱动装置。
3、如由客户提供确定的阀门类型和型号时,客户应正确说明其型号的含义和要求,在供需双方理解一致的条件下签订合同。
4、期货、订货的客户请先来电函详细告诉所需的阀门型号、规格、数量以及交货时间、地点,并按总的30%预定金或全额货款及时汇入我厂帐户,其余货款待发货前汇入,以便及时安排发货。
订单流程:
1、客户采购清单传真至,或来电咨询
2、收到客户采购清单,为客户提供阀门型号选型与报价(价格清单)。
3、具体商定:交货期、特殊要求等事宜。
订货须知:
1、客户如对产品有特殊要求,须在订货合同中提供以下说明:
|
|||||
|
|||||
2、本厂可根据客户特定要求配置各类驱动装置。
|
|||||
3、如由客户提供确定的阀门类型和型号时,客户应正确说明其型号的含义和要求,在供需双方理解一致的条件下签订合同。
|
|||||
4、期货、订货的客户请先来电函详细告诉所需的阀门型号、规格、数量以及交货时间、地点,并按总的30%预定金或全额货款及时汇入我厂账户, 其余货款待发货前汇入,以便及时安排发货。
|
售中服务:
守信合同,保证及时供货,随时保持与客户联系。
对特殊或复制的产品,我厂安排技术人员对用户进行产品使用、故障排除
售后服务:
1、“济南俊豪家庭艺术设计有限公司”产品品质期为自出厂起12个月,实行“三包”服务(包退、包换、保修)。
2、产品在使用中我厂定期组织技术、质检人员进行访问,征询用户对产品质量、使用状况、改进意见等方面的反馈,
以便进一步提高产品质量。
3、对用户投诉质量问题,快速作出反应,售后服务人员在24-36小时(省外48小时)赶赴现场。
4、对售后服务,要求用户填写服务后的质量反馈信息表,并作出鉴定意见,以便提高“济南俊豪家庭艺术设计有限公司”的服务质量。
声明 |
|